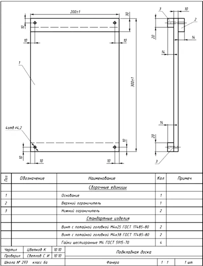
Правила чтения сборочных чертежей
Для получения корректной информации об изделии по сборочному чертежу необходимо использовать следующий порядок чтения чертежа:
1) найти название и назначение изделия;
2) установить, какие изображения, виды, разрезы даны на чертеже;
3) рассмотреть изображение каждой детали, определить её форму, габаритные размеры, её название, количество однотипных деталей;
4) определить способы соединения деталей;
5) найти другие данные, необходимые для изготовления и сборки изделия.
